Mokotów I dwupoziomowe I 4 pokoje I 145,74 m2

Mieszkanie na sprzedaż
2 549 000,00 PLN , Pow. 145,74 m2
Drukuj ofertę
Drukuj ofertę
Typ nieruchomości:
Mieszkanie
Powierzchnia:
145,74 m2
Typ transakcji:
sprzedaż
Liczba pokoi:
4
Lokalizacja:
Warszawa Mokotów , Jana III Sobieskiego
Rok budowy:
1999
Piętro:
6 na 7
Numer oferty:
575776
Cena za m2:
17 490,05 PLN
OPIS NIERUCHOMOŚCI:
Położona na Mokotowie, przy ul. Sobieskiego w sąsiedztwie parku Sieleckiego. Osiedle zadbane, strzeżone wjazd tylko dla mieszkańców i zapowiedzianych gości, dla których wyznaczono miejsca postojowe przy budynku. Na osiedlu miejsce zabaw dla dzieci oraz teren rekreacyjny dla dorosłych. Do dyspozycji mieszkańców duża rowerownia na poziomie hali garażowej oraz biblioteka osiedlowa. Sklep spożywczy w lokalu na parterze budynku.
Doskonale skomunikowana, m.in. dzięki nowej linii tramwajowej łączącej Wilanów z Centrum Warszawy.

DLA KOGO? Doskonałe miejsce dla osób ceniących bliskie położenie względem centrum miasta i jego infrastruktury. Idealne dla rodzinny 2+2/3 lub dla celów prowadzenia działalności biznesowej: kancelaria prawna/podatkowa, itp.

STAN PRAWNY: Jeden właściciel. Spółdzielcze własnościowe prawo do lokalu z możliwością założenia księgi wieczystej. Zakup można sfinansować kredytem hipotecznym, nasz doradca finansowy pomoże w dopasowaniu najkorzystniejszej oferty oraz poprowadzi przez proces uzyskania kredytu

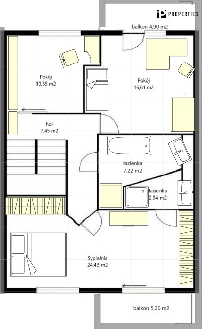
MIESZKANIE: Przestronne o powierzchni całkowitej 145,74m2, 4-ro pokojowe położone na dwóch poziomach (VI/VII kondygnacja), które dzięki swojemu układowi i zagospodarowaniu przestrzeni zapewnia mieszkańcom swobodę i zachowanie prywatności.
Na pierwszym poziomie znajdziemy 35 metrowy salon z kominkiem, dużą, jasną kuchnię, oba pomieszczenia doskonale doświetlone z wyjściem na 14 metrowy taras z widokiem na otwartą przestrzeń od południowego zachodu. Ponadto przestronny hol z pojemnymi szafami, WC oraz pralnię. Na drugim poziomie znajdują się 3 pokoje oraz 2 łazienki w tym jedna bezpośrednio przynależąca do dużej, 24 metrowej sypialni z wyjściem na 5 metrowy balkon skąd rozciąga się panoramiczny widok na Warszawę. Dwustronna ekspozycja północny - wschód / południowy - zachód. Wysokość pomieszczeń na poziomie I 272 cm, na poziomie II 260 cm. Mieszkanie wyposażone w klimatyzację.

WYKOŃCZENIE: Wysoki standard wykończenia z użyciem materiałów najwyższej jakości, zrealizowany z dbałością o detale i ponadczasowy styl. Zabudowa meblowa w salonie, kuchni, sypialni i bibliotece wg. indywidualnego projektu Na podłodze parkiet jesionowy w bardzo dobrym stanie.

BUDYNEK: 7 piętrowy z 1999 roku w bardzo dobrym stanie technicznym i wysokim standardzie, 2 windy na klatce.

POŁOŻENIE/OKOLICA: Nieruchomość położona jest przy ulicy Sobieskiego, części Traktu Królewskiego - najbardziej prestiżowej i reprezentacyjnej przestrzeni Warszawy, łączącej Zamek Królewski z Pałacem w Wilanowie.
To jedno z najbardziej pożądanych miejsc do zamieszkania w stolicy - idealne dla ludzi aktywnych, żyjących w rytmie miasta i jednocześnie ceniących relaks wśród zieleni najpiękniejszych warszawskich parków.

KOMUNIKACJA: Nieruchomość doskonałe skomunikowana dzięki autobusom oraz nowej linii tramwajowej uruchomionej w październiku 2024. Tramwaj nr 14 na trasie BANACHA - S. Banacha - Grójecka - pl. G. Narutowicza - Filtrowa - L. Krzywickiego - Nowowiejska - pl. Zbawiciela - Marszałkowska - pl. Unii Lubelskiej - Puławska - Goworka - Spacerowa - Belwederska - Jana III Sobieskiego - al. Rzeczypospolitej - MIASTECZKO WILANÓW 
oraz nr 16 na trasie PIASKI - W. Broniewskiego - al. Jana Pawła II - Stawki - gen. W. Andersa - pl. Bankowy - Marszałkowska - pl. Unii Lubelskiej - Puławska - Goworka - Spacerowa - Belwederska - Jana III Sobieskiego - al. Rzeczypospolitej - MIASTECZKO WILANÓW.
 
DODATKOWE INFORMACJE: miejsce postojowe w hali garażowej dodatkowo płatne.

Chcesz poznać więcej szczegółów lub obejrzeć mieszkanie osobiście - zadzwoń i umów się na prezentację. 
OFERTA na wyłączność, uprzejmie prosimy o kierowanie wszelkich pytań i kontakt wyłącznie z agentem - opiekunem oferty.

Iwona Skrodzka
tel. 790 260 840
IP Properties



Opis nieruchomości wykonany przez biuro sprzedaży IP Properties, sporządzany jest na podstawie informacji uzyskanych od właściciela, może podlegać aktualizacji i nie stanowi oferty określonej w art. 66 i następnych K.C.
Nieprawidłowy adres E-mail